Appartamento semi-indipendente nel cuore di Cagliari – ideale come B&B o residenza privata

In vendita
Appartamento
Cagliari
369.000 €
Descrizione
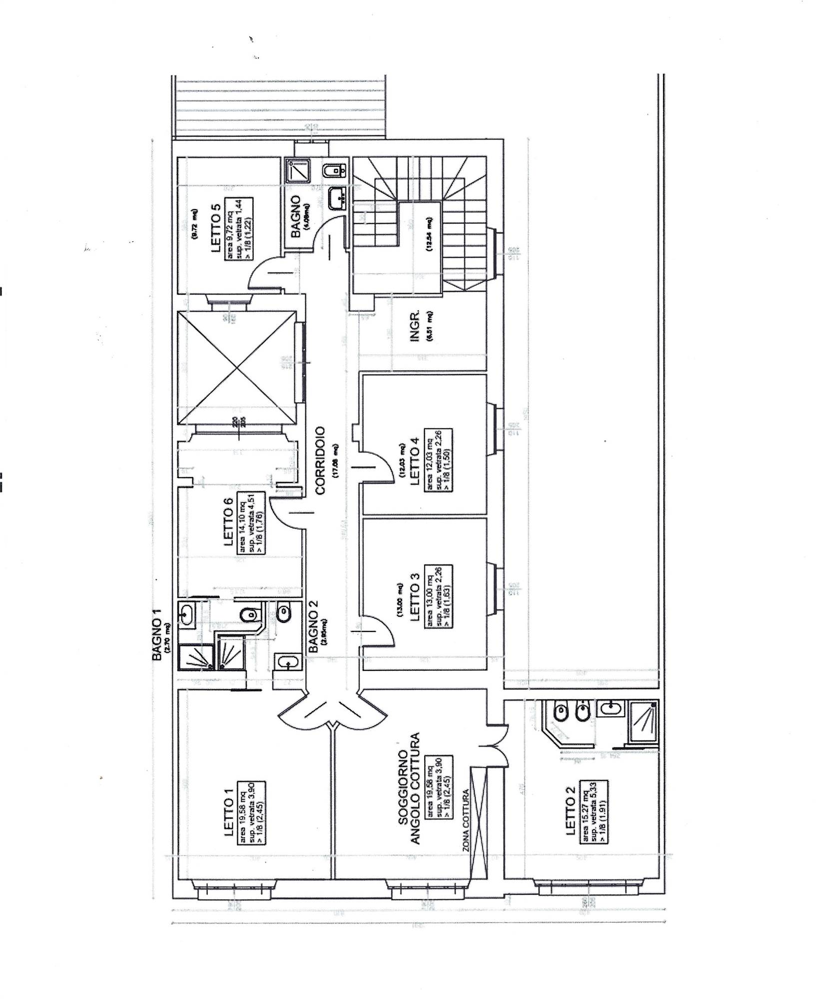
In Viale Diaz, una delle zone più centrali e ricercate di Cagliari, a pochi passi dal pittoresco porticciolo di Su Siccu e dalla Basilica di Bonaria, proponiamo in vendita un ampio appartamento semi-indipendente attualmente adibito a Bed & Breakfast.

L’immobile si sviluppa su una superficie generosa e si compone di:

6 camere da letto, ampie e luminose

4 bagni

doppio salotto, ideale come zona relax o spazio comune per gli ospiti

La posizione è strategica: il quartiere è servito da autobus, bar, ristoranti e servizi di ogni tipo, con la spiaggia del Poetto raggiungibile in pochi minuti. La zona rappresenta una delle aree più vive e richieste della città, perfetta sia per chi cerca una residenza di pregio nel centro urbano, sia per chi desidera investire in un’attività ricettiva già avviata o da sviluppare.

Un’occasione unica per vivere o lavorare nel cuore di Cagliari, a due passi dal mare.
Caratteristiche principali
Codice:
2525
Città:
Cagliari
Categoria:
Appartamento
Locali:
8,5
Camere:
6
Bagni:
4
Mq:
200
Anno:
1940
Classe energetica:
G
Stato Immobile:
Buono
Grado:
Signorile
Posizione:
Centro
Panorama:
Vista Aperta
Orientamento:
Sud Ovest
Lati Liberi:
4
Arredi:
Arredato
Tipo Soggiorno:
Doppio
Tipo Cucina:
Angolo Cottura
Riscaldamento:
Autonomo
Tipo Riscaldam.:
Pompa di Calore
Tipo Impianto:
Aria
Fonte Energetica:
Elettrico
Acqua Calda:
Autonoma
Raffrescamento:
Split
Infissi:
Legno Doppio Vetro
Accessori
Aria Condizionata
Doppi Vetri
Fibra Ottica
Video Citofono
Video Sorveglianza
Planimetrie
Cookie preference